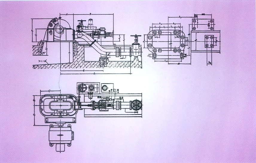
Francis type water turbine-generator unit install drawing

Kaplan Type water turbine-generator unit install drawing

Tubular Type water turbine-generator unit install drawing

Pelton type water turbine-generator unit install drawing

Inclined Jet type water turbine-generator unit install drawing
